Residentie Carton is een kleinschalige en kwalitatieve nieuwbouwresidentie met 7 appartementen, gelegen in het hart van Olsene, recht tegenover het kerkplein. Alle winkels, voorzieningen, scholen en openbaar vervoer bevinden zich op wandelafstand, wat zorgt voor een bijzonder aangename woonomgeving.

Dankzij de centrale ligging geniet u bovendien van een vlotte verbinding naar Deinze (Gent) en Waregem (Kortrijk). Ook de op- en afritten van de E17 bevinden zich op een boogscheut van de residentie.

De residentie beschikt over privatieve garages, carports en autostaanplaatsen, evenals een gemeenschappelijke, overdekte fietsenstalling.

Elk appartement wordt afgewerkt met kwalitatieve materialen en geniet van een doordachte indeling met veel lichtinval. De leefruimtes sluiten aan op een open keuken, wat zorgt voor een modern en comfortabel woongevoel.

Op technisch vlak is Residentie Carton volledig futureproof:
– vloerverwarming
– warmtepomp (lucht/water)
– ventilatiesysteem type D
– privatieve zonnepanelen per appartement

Het gebouw is momenteel in aanbouw. Het lastenboek is steeds opvraagbaar en bijkomende informatie of plannen kunnen vrijblijvend worden toegelicht.
Aankoop aan 6% btw is mogelijk, mits voldaan wordt aan de voorwaarden.

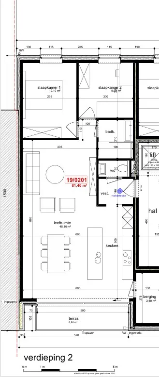
Appartement 02.01 – tweede verdiep

Dit appartement op de tweede verdieping heeft een bewoonbare oppervlakte van 81,40 m² en beschikt over twee slaapkamers. Het appartement beschikt over een terras van 6,60 m² aan de voorzijde van het gebouw.

Een garage, carport of autostaanplaats zijn afzonderlijk aan te kopen.

Graag meer informatie? Neem gerust contact met ons op.
EPB in opmaak.

Woonopp.
81 m²
Slaapkamers
2
Garage
Ja

Algemeen

Adres:Centrumstraat 19/02.01
Olsene
Referentie:Centrumstraat 19 02.01 - Olsene
Vraagprijs:€ 284.238
Type:Appartement
Beschikbaar vanaf:Bij oplevering
Bewoonbare opp.:81 m²
Type constructie:Traditioneel
Bouwjaar:2025
Op verdieping:2

Indeling

Slaapkamers:2
Badkamers:Ja
WC:Ja
Woonkamer:Ja
Keuken:Ja, Open keuken, Ingericht met toestellen
Berging:Ja
Balkon:7 m²
Terras:7 m²
Parking:Ja

Comfort

Raamwerk:Aluminium
Verwarming:Vloerverw. geheel, Warmtepomp
Isolatie:Volledig geïsoleerd
Lift:Ja
Zonnepanelen:Ja
Videofoon:Ja

Wettelijke gegevens

Kadastrale benaming:44050 ZULTE 2 AFD/OLSENE
Kadastrale Nummers:0071/00Z003
Stedenbouwkundige vergunning:Ja
Voorkooprecht:Neen
Verkavelingsvergunning van toepassing:Neen
Stedenbouwkundige bestemming:Woongebied
Dagvaarding en herstelvordering:Geen rechterlijke herstelmaatregel of bestuurlijke maatregel opgelegd
Overstromingsgevoelig:Geen overstromingsgevoelig gebied
Overstromingsgebied:Geen afgebakende zones
Overstromingskans perceel (P-score):A
Overstromingskans gebouw (G-score):A
Erfgoed:Geen beschermd erfgoed
Olsene 9870
Centrumstraat 19 02.01

€ 284 238


U moet akkoord gaan met het privacybeleid van deze website
* Verplicht in te vullen
Olsene 9870
Centrumstraat 19 02.01

€ 284 238

Olsene 9870
Centrumstraat 19 02.01

€ 284 238