Modern luxe appartement met ruim hoekterras in nieuwbouwproject "Angelus" te Waregem!
€ 320 059
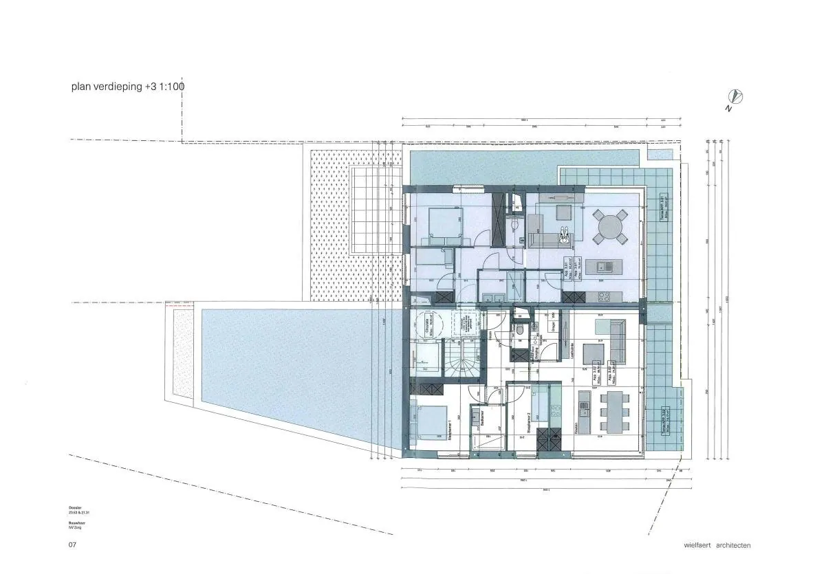
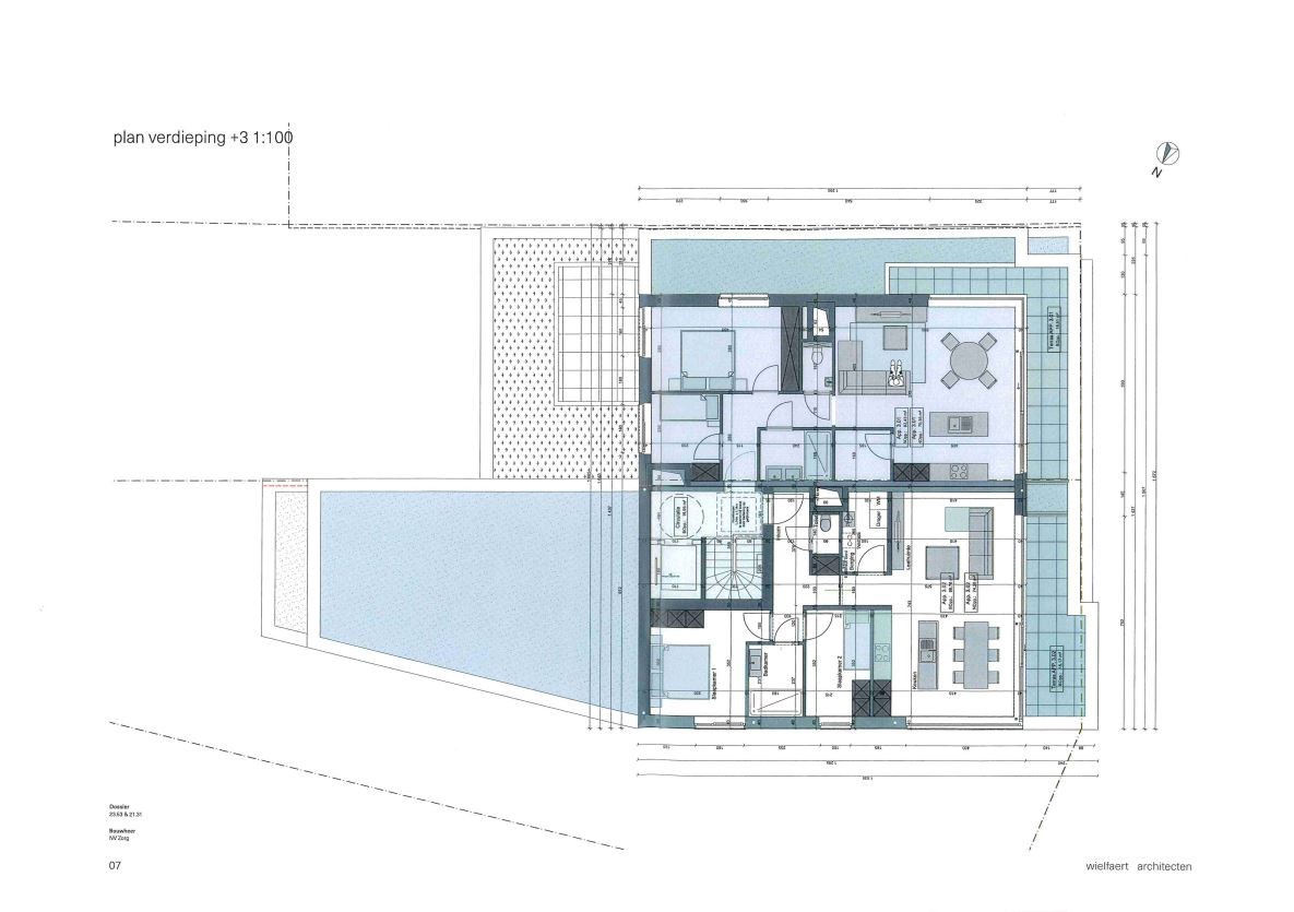
Ontdek dit prachtige appartement van 82 m², gelegen op de derde verdieping van een modern nieuwbouwproject in het hart van Waregem.
Licht en open wonen:
De open keuken loopt vloeiend over in de eet- en leefruimte, wat zorgt voor een ruime, uitnodigende sfeer. Vanuit de living geniet u van directe toegang tot een royaal hoekterras van 18 m² – de ideale plek om te ontspannen en te genieten van het buitenleven.
Comfort en praktische indeling:
Twee ruime slaapkamers
Moderne badkamer
Apart toilet
Handige berging
Uw persoonlijke stijl:
Omdat het appartement op plan wordt verkocht, kiest u zelf de materialen en afwerkingen. Zo maakt u van deze woonst uw unieke thuis, helemaal afgestemd op uw smaak.
Extra comfort:
Optioneel is een parkeerplaats of carport beschikbaar, wat het wooncomfort in dit levendige stadscentrum verder vergroot.
Grijp uw kans om comfortabel en modern te wonen op een toplocatie in Waregem.
Neem vandaag nog contact op voor meer informatie.
Algemeen
| Adres: | Stationsstraat 172/3.01 Waregem |
| Referentie: | Stationsstraat 172 bus 3.01 - Waregem 06/25 |
| Vraagprijs: | € 320.059/totaal |
| Type: | Appartement |
| Beschikbaar vanaf: | Bij oplevering |
| Bewoonbare opp.: | 82 m² |
| Type constructie: | Traditioneel |
| Op verdieping: | 3 |
Indeling
| Slaapkamers: | 2 |
| Badkamers: | 1 |
| WC: | 1 |
| Woonkamer: | Ja, U-kamer |
| Keuken: | Ja, Open keuken, Ingericht met toestellen |
| Terras: | 19 m² |
Comfort
| Snelweg: | Ja - op 3000 m tot 4000 m |
| Treinstation: | Ja - op minder dan 500 m |
| Treinhalte: | Ja - op minder dan 500 m |
| Bushalte: | Ja - op minder dan 500 m |
| Winkel: | Ja - op minder dan 500 m |
| School: | Ja - op minder dan 500 m |
| Kinderopvang: | Ja - op minder dan 500 m |
| Bank: | Ja - op minder dan 500 m |
| Ontspanning: | Ja - op minder dan 500 m |
| Restaurant: | Ja - op minder dan 500 m |
| Lift: | Ja |
| Mech. ventilatie : | Ja |
| Rookdetector: | Ja |
| Videofoon: | Ja |
Wettelijke gegevens
| Stedenbouwkundige vergunning: | Ja |
| Voorkooprecht: | Neen |
| Verkavelingsvergunning van toepassing: | Ja |
| Stedenbouwkundige bestemming: | Woongebied |
| Dagvaarding en herstelvordering: | Geen rechterlijke herstelmaatregel of bestuurlijke maatregel opgelegd |
| Overstromingsgevoelig: | Geen overstromingsgevoelig gebied |
| Overstromingsgebied: | Geen afgebakende zones |
| Overstromingskans perceel (P-score): | A |
| Overstromingskans gebouw (G-score): | A |
| Erfgoed: | Geen beschermd erfgoed |