Prestige nieuwbouwappartement in hartje Waregem op een topligging!
€ 298 600
Modern nieuwbouwappartement in het hart van Waregem
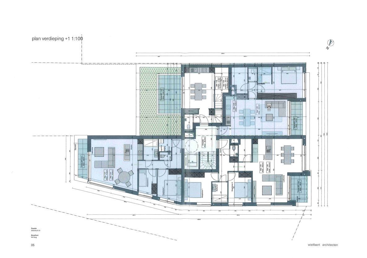
Bent u op zoek naar een stijlvolle en comfortabele woonst in het centrum van Waregem? Dit nieuwbouwappartement op de eerste verdieping combineert een doordachte indeling met hedendaags wooncomfort en een uitstekende ligging.
Met een bewoonbare oppervlakte van 77 m² en een extra terras van 8 m², geniet u hier van een aangename leefomgeving met veel lichtinval en ruimte.
Indeling:
Twee volwaardige slaapkamers
Moderne badkamer
Apart toilet
Open en lichtrijke leefruimte met geïntegreerde keuken
Praktische bergruimte
Aangezien het appartement op plan wordt aangeboden, krijgt u als koper de unieke kans om zelf de materialen en afwerkingen te kiezen. Zo creëert u een interieur dat volledig aansluit bij uw eigen smaak en levensstijl.
Extra troef:
Er is mogelijkheid tot aankoop van een parkeerplaats of carport – handig én comfortabel in een bruisend stadscentrum.
Uw kans op zorgeloos wonen in een hedendaags nieuwbouwproject op toplocatie.
Aarzel niet om contact op te nemen voor meer informatie of een vrijblijvend gesprek.
Algemeen
| Adres: | Stationsstraat 172/1.01 Waregem |
| Referentie: | Stationsstraat 172 bus 1.01 - Waregem 10/25 |
| Vraagprijs: | € 298.600/totaal |
| Type: | Appartement |
| Beschikbaar vanaf: | Bij oplevering |
| Bewoonbare opp.: | 77 m² |
| Type constructie: | Traditioneel |
| Op verdieping: | 1 |
Indeling
| Slaapkamers: | 2 |
| Badkamers: | 1 |
| WC: | 1 |
| Woonkamer: | Ja, U-kamer |
| Keuken: | Ja, Open keuken, Ingericht met toestellen |
| Terras: | 8 m² |
Comfort
| Snelweg: | Ja - op 3000 m tot 4000 m |
| Treinstation: | Ja - op minder dan 500 m |
| Treinhalte: | Ja - op minder dan 500 m |
| Bushalte: | Ja - op minder dan 500 m |
| Winkel: | Ja - op minder dan 500 m |
| School: | Ja - op minder dan 500 m |
| Kinderopvang: | Ja - op minder dan 500 m |
| Bank: | Ja - op minder dan 500 m |
| Ontspanning: | Ja - op minder dan 500 m |
| Restaurant: | Ja - op minder dan 500 m |
| Lift: | Ja |
| Mech. ventilatie : | Ja |
| Rookdetector: | Ja |
| Videofoon: | Ja |
Wettelijke gegevens
| Stedenbouwkundige vergunning: | Ja |
| Voorkooprecht: | Neen |
| Verkavelingsvergunning van toepassing: | Ja |
| Stedenbouwkundige bestemming: | Woongebied |
| Dagvaarding en herstelvordering: | Geen rechterlijke herstelmaatregel of bestuurlijke maatregel opgelegd |
| Overstromingsgevoelig: | Geen overstromingsgevoelig gebied |
| Overstromingsgebied: | Geen afgebakende zones |
| Overstromingskans perceel (P-score): | A |
| Overstromingskans gebouw (G-score): | A |
| Erfgoed: | Geen beschermd erfgoed |