Prestigieus nieuwbouwappartement in hartje Waregem!
€ 290 228
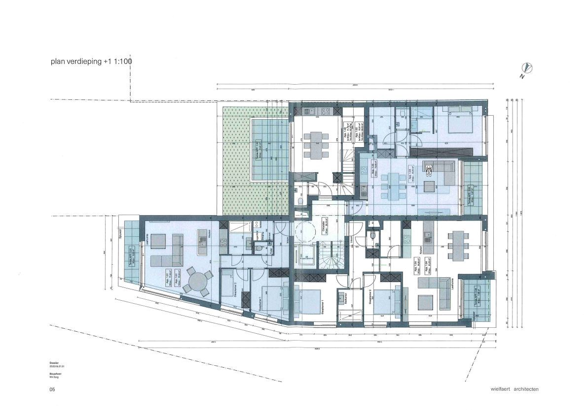
Op zoek naar een stijlvolle, comfortabele thuis in een bruisende omgeving? Dit prachtige appartement van 75 m² op de eerste verdieping van een hedendaags nieuwbouwproject in het hart van Waregem biedt alles wat u nodig hebt voor aangenaam en zorgeloos wonen.
Ruimtelijk en licht wonen:
De open keuken vloeit naadloos over in de eet- en leefruimte, wat zorgt voor een luchtig en ruimtelijk gevoel. Vanuit de woonkamer heeft u directe toegang tot een gezellig terras van 7 m² – ideaal om te ontspannen na een drukke dag of te genieten van een zonnige ochtendkoffie.
Slimme indeling met oog voor comfort:
Ruime slaapkamer met en suite badkamer
Apart gastentoilet
Veel natuurlijke lichtinval en doordachte indeling
Omdat het appartement op plan wordt verkocht, kiest u zelf de afwerking en materialen. Zo creëert u een woning die volledig afgestemd is op uw smaak en levensstijl.
Extra troef:
Optioneel is een parkeerplaats of carport beschikbaar – een waardevolle meerwaarde in het centrum van Waregem.
Uw nieuwe thuis wacht op u – modern, comfortabel en volledig naar wens in te richten.
Contacteer ons vandaag voor meer informatie of een vrijblijvende afspraak.
Algemeen
| Adres: | Stationsstraat 172/1.03 Waregem |
| Referentie: | Stationsstraat 172 bus 1.03 - Waregem okt 25 |
| Vraagprijs: | € 290.228/totaal |
| Type: | Opbrengsteigendom |
| Beschikbaar vanaf: | Bij oplevering |
| Bewoonbare opp.: | 75 m² |
| Type constructie: | Traditioneel |
| Op verdieping: | 1 |
Indeling
| Slaapkamers: | 1 |
| Badkamers: | 1 |
| WC: | 1 |
| Woonkamer: | Ja, U-kamer |
| Keuken: | Ja, Open keuken, Ingericht met toestellen |
| Terras: | 7 m² |
Comfort
| Snelweg: | Ja - op 3000 m tot 4000 m |
| Treinstation: | Ja - op minder dan 500 m |
| Treinhalte: | Ja - op minder dan 500 m |
| Bushalte: | Ja - op minder dan 500 m |
| Winkel: | Ja - op minder dan 500 m |
| School: | Ja - op minder dan 500 m |
| Kinderopvang: | Ja - op minder dan 500 m |
| Bank: | Ja - op minder dan 500 m |
| Ontspanning: | Ja - op minder dan 500 m |
| Restaurant: | Ja - op minder dan 500 m |
| Lift: | Ja |
| Mech. ventilatie : | Ja |
| Rookdetector: | Ja |
| Videofoon: | Ja |
Wettelijke gegevens
| Stedenbouwkundige vergunning: | Ja |
| Voorkooprecht: | Neen |
| Verkavelingsvergunning van toepassing: | Ja |
| Stedenbouwkundige bestemming: | Woongebied |
| Dagvaarding en herstelvordering: | Geen rechterlijke herstelmaatregel of bestuurlijke maatregel opgelegd |
| Overstromingsgevoelig: | Geen overstromingsgevoelig gebied |
| Overstromingsgebied: | Geen afgebakende zones |
| Overstromingskans perceel (P-score): | A |
| Overstromingskans gebouw (G-score): | A |
| Erfgoed: | Geen beschermd erfgoed |