Wonen en werken kan hier op deze commerciële toplocatie in hartje Waregem!

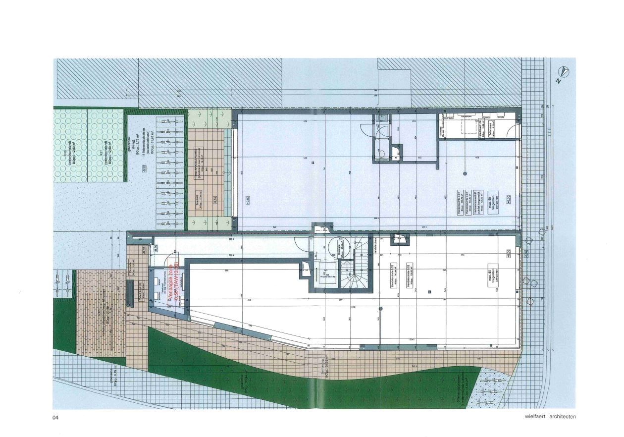
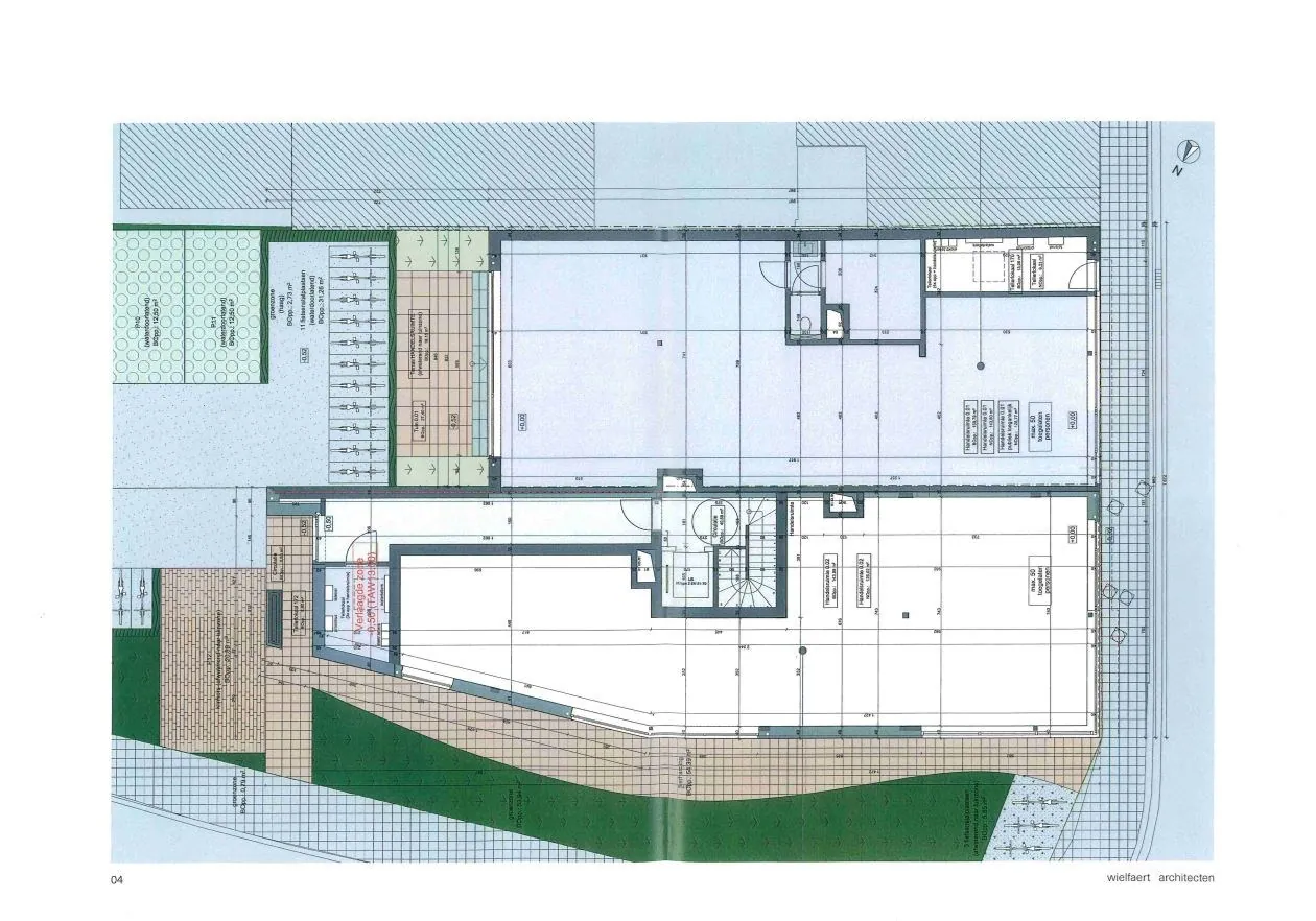
Bent u op zoek naar een veelzijdige en strategisch gelegen handelsruimte voor uw onderneming? Deze gelijkvloerse handelsruimte, vlakbij het station en het centrum van Waregem, biedt u de perfecte zichtbaarheid én bereikbaarheid.

Uitstekende ligging:
De handelsruimte (0.02) bevindt zich langs een drukke en commerciële straat, wat zorgt voor maximale passage en zichtbaarheid – ideaal voor wie wil investeren in een locatie met groeipotentieel.

Volledig casco – 100% vrijheid:
De ruimte wordt casco opgeleverd, zonder inrichting of afwerking. Dit biedt u de unieke kans om het interieur volledig naar eigen smaak en zakelijke noden in te richten – zonder beperkingen van bestaande structuren.

Extra troef:

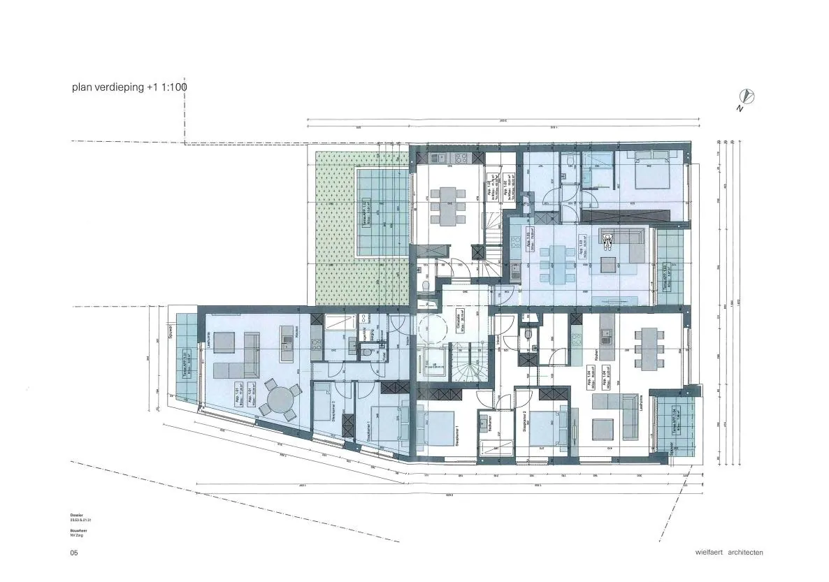
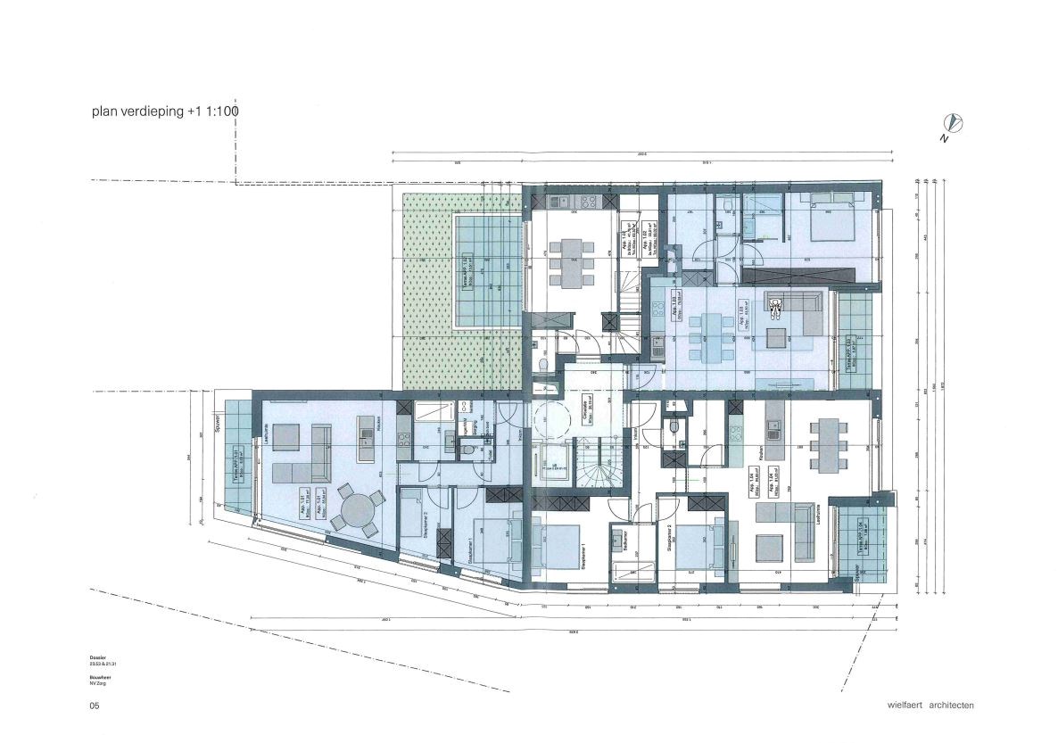
Bijhorend bieden wij u een prestigieus luxe appartement met 1 slaapkamer. Dit prachtige appartement (1.03) van 75 m² op de eerste verdieping biedt alles wat u nodig hebt voor aangenaam en zorgeloos wonen.

Ruimtelijk en licht wonen:
De open keuken vloeit naadloos over in de eet- en leefruimte, wat zorgt voor een luchtig en ruimtelijk gevoel. Vanuit de woonkamer heeft u directe toegang tot een gezellig terras van 7 m² – ideaal om te ontspannen na een drukke dag of te genieten van een zonnige ochtendkoffie.

Slimme indeling met oog voor comfort:

Ruime slaapkamer met en suite badkamer

Apart gastentoilet

Veel natuurlijke lichtinval en doordachte indeling

Omdat het appartement op plan wordt verkocht, kiest u zelf de afwerking en materialen. Zo creëert u een woning die volledig afgestemd is op uw smaak en levensstijl.

Er is ook mogelijkheid tot aankoop van een parkeerplaats of carport, wat zowel voor uzelf als voor uw klanten een extra comfort betekent.

Interesse in een ruimte waar u écht uw eigen stempel op kunt drukken en waar u kan wonen zodat het woon-werk verkeer kan beperkt worden?

Contacteer ons vandaag nog voor meer informatie.

Slaapkamers
1

Algemeen

Adres:Stationsstraat 172
Waregem
Referentie:Stationsstraat 172 app+handel 06/25
Vraagprijs:€ 704.928/totaal
Type:Appartement
Beschikbaar vanaf:Bij oplevering
Bebouwde opp.:218 m²
Type constructie:Traditioneel
Op verdieping:0
Verhuurbare vloeroppervlakte:143 m²

Indeling

Slaapkamers:1
Badkamers:Ja
WC:Ja
Woonkamer:Ja
Keuken:Ja
Terras:Ja

Comfort

Snelweg:Ja - op 3000 m tot 4000 m
Treinstation:Ja - op minder dan 500 m
Treinhalte:Ja - op minder dan 500 m
Busknooppunt:Ja - op minder dan 500 m
Bushalte:Ja - op minder dan 500 m
Winkel:Ja - op minder dan 500 m
School:Ja - op minder dan 500 m
Kinderopvang:Ja - op minder dan 500 m
Bank:Ja - op minder dan 500 m
(Stads)centrum:Ja - op minder dan 500 m
Ontspanning:Ja - op minder dan 500 m
Restaurant:Ja - op minder dan 500 m
Mech. ventilatie :Ja
Rookdetector:Ja

Wettelijke gegevens

Stedenbouwkundige vergunning:Ja
Voorkooprecht:Neen
Verkavelingsvergunning van toepassing:Ja
Stedenbouwkundige bestemming:Woongebied
Dagvaarding en herstelvordering:Geen rechterlijke herstelmaatregel of bestuurlijke maatregel opgelegd
Overstromingsgevoelig:Geen overstromingsgevoelig gebied
Overstromingsgebied:Geen afgebakende zones
Overstromingskans perceel (P-score):A
Overstromingskans gebouw (G-score):A
Erfgoed:Geen beschermd erfgoed
Waregem 8790
Stationsstraat 172

€ 704 928


U moet akkoord gaan met het privacybeleid van deze website
* Verplicht in te vullen
Waregem 8790
Stationsstraat 172

€ 704 928

Waregem 8790
Stationsstraat 172

€ 704 928