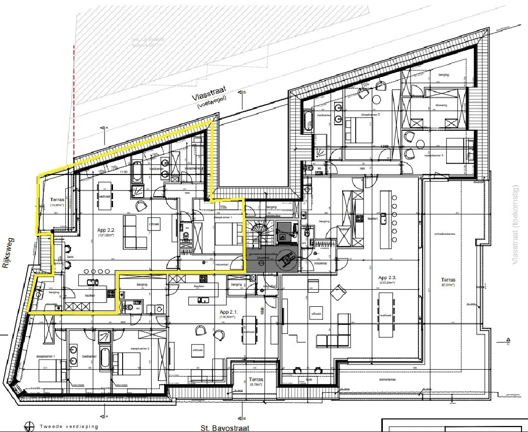
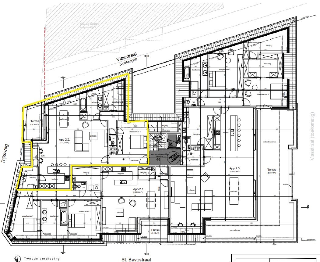
Hoekappartement op de tweede verdieping in de nieuwbouw residentie "De Rembrandt". Gebouwd met oog voor detail en comfort.
Bij de afwerking van de appartementen werd gekozen voor de meest kwalitatieve en tijdloze materialen waardoor stijl en klasse naadloos in elkaar vloeien.

Deze centraal gelegen residentie biedt een vlotte verbinding naar o.a. het centrum van Wielsbeke, Oostrozebeke en Waregem. Gelegen vlakbij de oude Leie arm aan het vernieuwde OC Den Aert. Een ideale uitvalbasis voor wandel- en fietsplezier.

Indeling: Er is een ruime inkomhal die toegang geeft tot een aparte berging, de leefruimte, de open keuken en het terras. Via de open keuken heb je overigens toegang tot een tweede bergruimte/wasruimte. Daarnaast is er ook een ruime nachthal die toegang geeft tot het toilet, de badkamer en de twee slaapkamers. De badkamer bestaat uit een douche, een ligbad en een dubbele lavabo.

Groot terras met verzicht op de Rijksweg zowel richting St.Eloois-Vijve als richting Wielsbeke.
Ideaal voor wie graag wat passage ziet.

De bewoonbare oppervlakte bedraagt 121 m². De oppervlakte van het terras bedraagt 11 m².

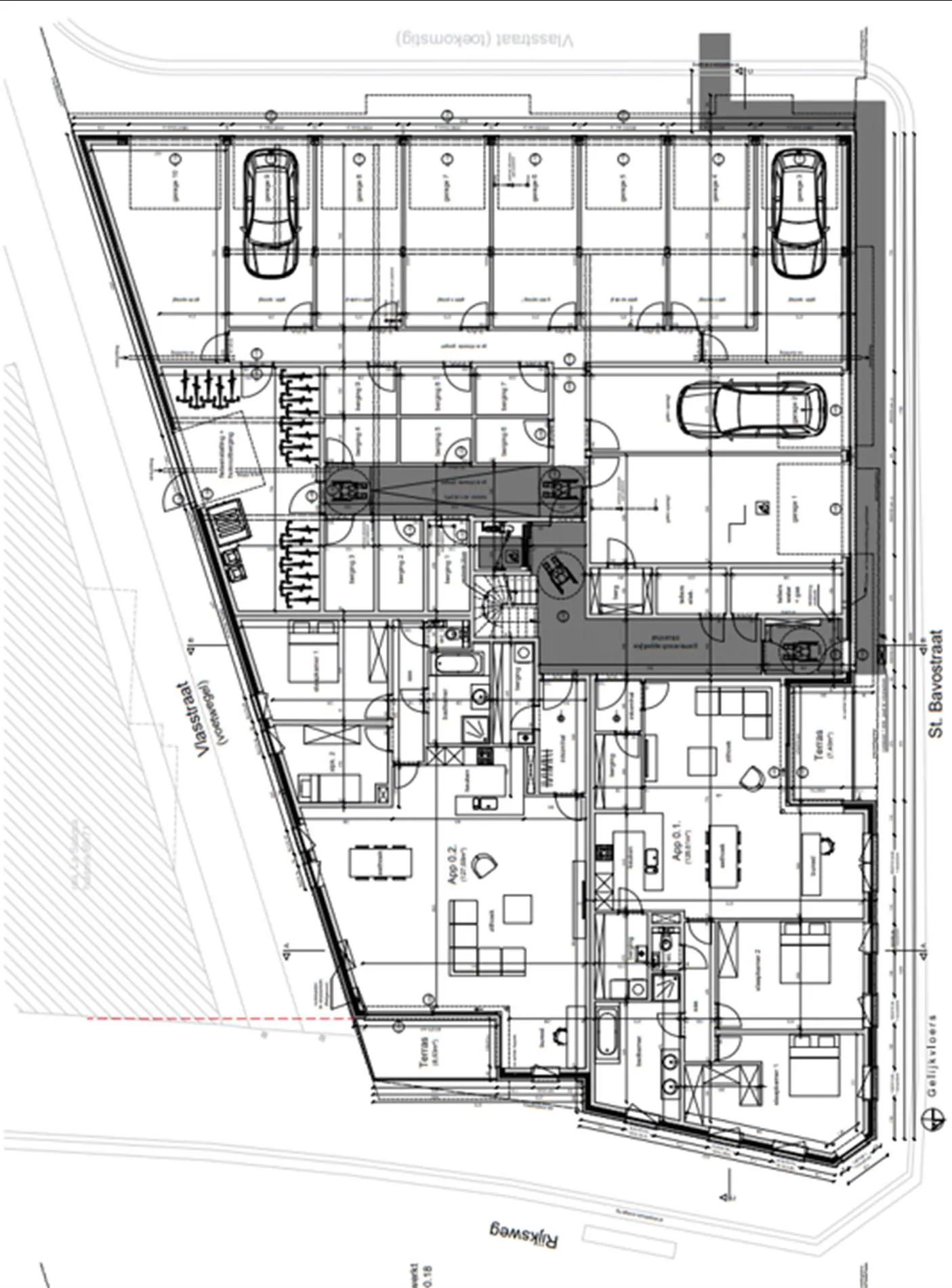
Vanuit de garage zijn de private bergingen, inkomhal en lift bereikbaar. Eens binnen geparkeerd hoeft u niet meer naar buiten.

E-peil 18 (volledige vrijstelling van onroerende voorheffing gedurende 5 jaar).

Het appartement is voorzien van privatieve zonnepanelen.

Overal vloerverwarming met apart regelbare circuits per ruimte.

De parking achteraan (komende vanuit de Vlasstraat) volledig nieuw aangelegd met openbare parkeerplaatsen en groen.

Opsplitsing prijs: Grondwaarde 54.459,0 EUR - Constructie 244.541,00 EUR
6 % BTW mogelijk.

Alle bedragen zijn exclusief garages, bergingen en kosten. Garage (25.000 EUR) en berging (5.600 EUR) mogelijk mee aan te kopen. Er is nog één extra grote garage beschikbaar (28.200 EUR)

Woonopp.
121 m²
Slaapkamers
2
Garage
Ja

Algemeen

Adres:Sint-Bavostraat 1/2.03
Wielsbeke
Referentie:Sint-Bavostraat 1 Apt. 2.2 - St.Baafs-Vijve
Vraagprijs:€ 299.000
Type:Opbrengsteigendom
Beschikbaar vanaf:Bij akte
Bewoonbare opp.:121 m²
Type constructie:Traditioneel
Bouwlagen:4

Indeling

Slaapkamers:2
Badkamers:1
WC:1
Woonkamer:Ja
Keuken:Ja
Garage:1

Comfort

Raamwerk:Draai-/kiepramen, PVC
Beglazing:Superisolerend
Verwarming:Vloerverw. geheel, Condensatieketel, Aardgas
Isolatie:Volledig geïsoleerd

Wettelijke gegevens

EPC Certificaat Nr.:37017-G-OMV_2018111384/EPO6313/A001/D01/SD001
EPC Index:33,00 kWh/(m² jaar)
EnergyClass:A
EPC E-peil:18,00
Stedenbouwkundige vergunning:Ja
Voorkooprecht:Neen
Verkavelingsvergunning van toepassing:Neen
Stedenbouwkundige bestemming:Woongebied
Dagvaarding en herstelvordering:Geen rechterlijke herstelmaatregel of bestuurlijke maatregel opgelegd
Overstromingsgevoelig:Geen overstromingsgevoelig gebied
Overstromingsgebied:Geen afgebakende zones
Overstromingskans perceel (P-score):A
Overstromingskans gebouw (G-score):A
Erfgoed:Geen beschermd erfgoed

Grondplannen

Grondplan 1
Wielsbeke 8710
Sint-Bavostraat 1 2.03

€ 299 000


U moet akkoord gaan met het privacybeleid van deze website
* Verplicht in te vullen
Wielsbeke 8710
Sint-Bavostraat 1 2.03

€ 299 000

Wielsbeke 8710
Sint-Bavostraat 1 2.03

€ 299 000