Nieuwbouwappartement met één slaapkamer, terras en ondergrondse autostaanplaats te koop in Zulte.

Residentie Strohalm is een prestigieus nieuwbouwproject op een uitmuntende, centrale ligging in Zulte. Vanuit deze locatie geniet u van een vlotte verbinding naar Deinze, Waregem en het op- en afrittencomplex van de E17 in Kruisem. De groene tuin rondom het project zorgt dan weer voor de nodige rust.

Verder beschikt de residentie over ondergrondse parkeerplaatsen, aparte bergingen, een ruime gemeenschappelijke tuin en bezoekersparking. Alle nodige faciliteiten, zoals winkels, scholen en openbaar vervoer, bevinden zich op wandelafstand, wat het wooncomfort nog verder verhoogt.

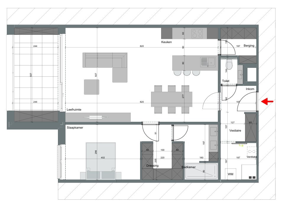
Dit appartement van 91,58 m² bevindt zich op het eerste verdiep en beschikt over een terras aan de zijkant van het gebouw. De indeling is doordacht en praktisch, met een kwalitatieve afwerking en moderne technieken.

Indeling:
- Lichtrijke leefruimte met toegang tot het terras
- Volledig uitgeruste keuken met kookeiland
- Berging voor extra opbergruimte
- Apart gastentoilet
- Badkamer met dubbele lavabo en inloopdouche
- Volwaardige slaapkamer
- Dressing

Voorzieningen:
- Geothermische warmtepomp met een interne boiler van 180 liter
- Vloerverwarming voor optimaal comfort
- Ventilatiesysteem type D voor een gezond binnenklimaat
- Videofonie voor extra veiligheid

Ondergrondse parkeerplaatsen en bergingen dienen mee aangekocht te worden bij het appartement.

E-peil: maximaal 25, S-peil: maximaal 28.

In deze residentie zijn in totaal nog 4 appartementen beschikbaar, met oppervlaktes tussen 91,58 m² en 116,44 m². De appartementen beschikken over 1 of 2 slaapkamers.

Prijzen:
- Appartementen (exclusief kosten): tussen €315.421 en €439.948
- Ondergrondse parkeerplaatsen (exclusief kosten): tussen €20.000 en €25.000
- Ondergrondse bergingen (exclusief kosten): tussen €5.293 en €10.397

Wenst u meer informatie of een bezoek ter plaatse? Neem gerust contact met ons op en ontdek zelf de troeven van Residentie Strohalm!

Slaapkamers
1
Tuin
Ja
Garage
Ja

Algemeen

Adres:Staatsbaan 76/1.3
Zulte
Referentie:Staatsbaan 76 bus 1.3 - Zulte
Vraagprijs:€ 315.421
Type:Appartement
Beschikbaar vanaf:Bij akte
Bebouwde opp.:92 m²
Type constructie:Traditioneel
Bouwjaar:2024

Indeling

Slaapkamers:1
Badkamers:Ja
WC:Ja
Woonkamer:Ja
Keuken:Ja, Open keuken, Ingericht met toestellen
Berging:Ja
Wasplaats:Ja
Tuin:Ja
Parking:Ja

Comfort

Raamwerk:Aluminium
Beglazing:Dubbel, Hoogrendementsglas
Verwarming:Vloerverw. geheel, Warmtepomp
Lift:Ja
Rookdetector:Ja
Videofoon:Ja

Wettelijke gegevens

Kadastrale benaming:1 AFD/ZULTE
Kadastrale Nummers:A0057/00E006
EPC E-peil:25,00
Stedenbouwkundige vergunning:Ja
Voorkooprecht:Neen
Verkavelingsvergunning van toepassing:Neen
Stedenbouwkundige bestemming:Woongebied
Dagvaarding en herstelvordering:Geen rechterlijke herstelmaatregel of bestuurlijke maatregel opgelegd
Overstromingsgevoelig:Geen overstromingsgevoelig gebied
Overstromingsgebied:Geen afgebakende zones
Overstromingskans perceel (P-score):A
Overstromingskans gebouw (G-score):A
Erfgoed:Geen beschermd erfgoed
Zulte 9870
Staatsbaan 76 1.3

€ 315 421


U moet akkoord gaan met het privacybeleid van deze website
* Verplicht in te vullen
Zulte 9870
Staatsbaan 76 1.3

€ 315 421

Zulte 9870
Staatsbaan 76 1.3

€ 315 421