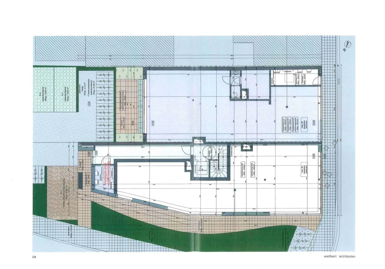
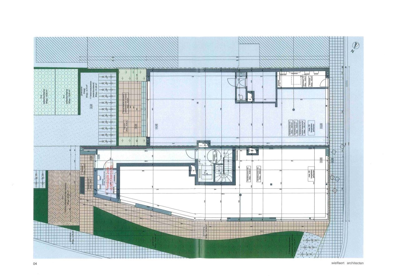
Gelijkvloerse handelsruimte van 143 m² in het hart van Waregem
€ 414 700
Commerciële toplocatie te koop in hartje Waregem!
Bent u op zoek naar een veelzijdige en strategisch gelegen handelsruimte voor uw onderneming? Deze gelijkvloerse handelsruimte, vlakbij het station en het centrum van Waregem, biedt u de perfecte zichtbaarheid én bereikbaarheid.
Uitstekende ligging:
De handelsruimte bevindt zich langs een drukke en commerciële straat, wat zorgt voor maximale passage en zichtbaarheid – ideaal voor wie wil investeren in een locatie met groeipotentieel.
Volledig casco – 100% vrijheid:
De ruimte wordt casco opgeleverd, zonder inrichting of afwerking. Dit biedt u de unieke kans om het interieur volledig naar eigen smaak en zakelijke noden in te richten – zonder beperkingen van bestaande structuren.
Extra troef:
Er is mogelijkheid tot aankoop van een parkeerplaats of carport, wat zowel voor uzelf als voor uw klanten een extra comfort betekent.
Interesse in een ruimte waar u écht uw eigen stempel op kunt drukken?
Contacteer ons vandaag nog voor meer informatie.
Algemeen
| Adres: | Stationsstraat 172/0.02 Waregem |
| Referentie: | Stationsstraat 172 bus 0.02 |
| Vraagprijs: | € 414.700/totaal |
| Type: | Commercieel kantoor |
| Beschikbaar vanaf: | Bij oplevering |
| Bebouwde opp.: | 143 m² |
| Op verdieping: | 0 |
| Verhuurbare vloeroppervlakte: | 143 m² |
Comfort
| Snelweg: | Ja - op 3000 m tot 4000 m |
| Treinstation: | Ja - op minder dan 500 m |
| Treinhalte: | Ja - op minder dan 500 m |
| Bushalte: | Ja - op minder dan 500 m |
| Winkel: | Ja - op minder dan 500 m |
| School: | Ja - op minder dan 500 m |
| Kinderopvang: | Ja - op minder dan 500 m |
| Bank: | Ja - op minder dan 500 m |
| (Stads)centrum: | Ja - op minder dan 500 m |
| Ontspanning: | Ja - op minder dan 500 m |
| Restaurant: | Ja - op minder dan 500 m |
| Mech. ventilatie : | Ja |
| Rookdetector: | Ja |
Wettelijke gegevens
| Stedenbouwkundige vergunning: | Ja |
| Voorkooprecht: | Neen |
| Verkavelingsvergunning van toepassing: | Ja |
| Stedenbouwkundige bestemming: | Woongebied |
| Dagvaarding en herstelvordering: | Geen rechterlijke herstelmaatregel of bestuurlijke maatregel opgelegd |
| Overstromingsgevoelig: | Geen overstromingsgevoelig gebied |
| Overstromingsgebied: | Geen afgebakende zones |
| Overstromingskans perceel (P-score): | A |
| Overstromingskans gebouw (G-score): | A |
| Erfgoed: | Geen beschermd erfgoed |