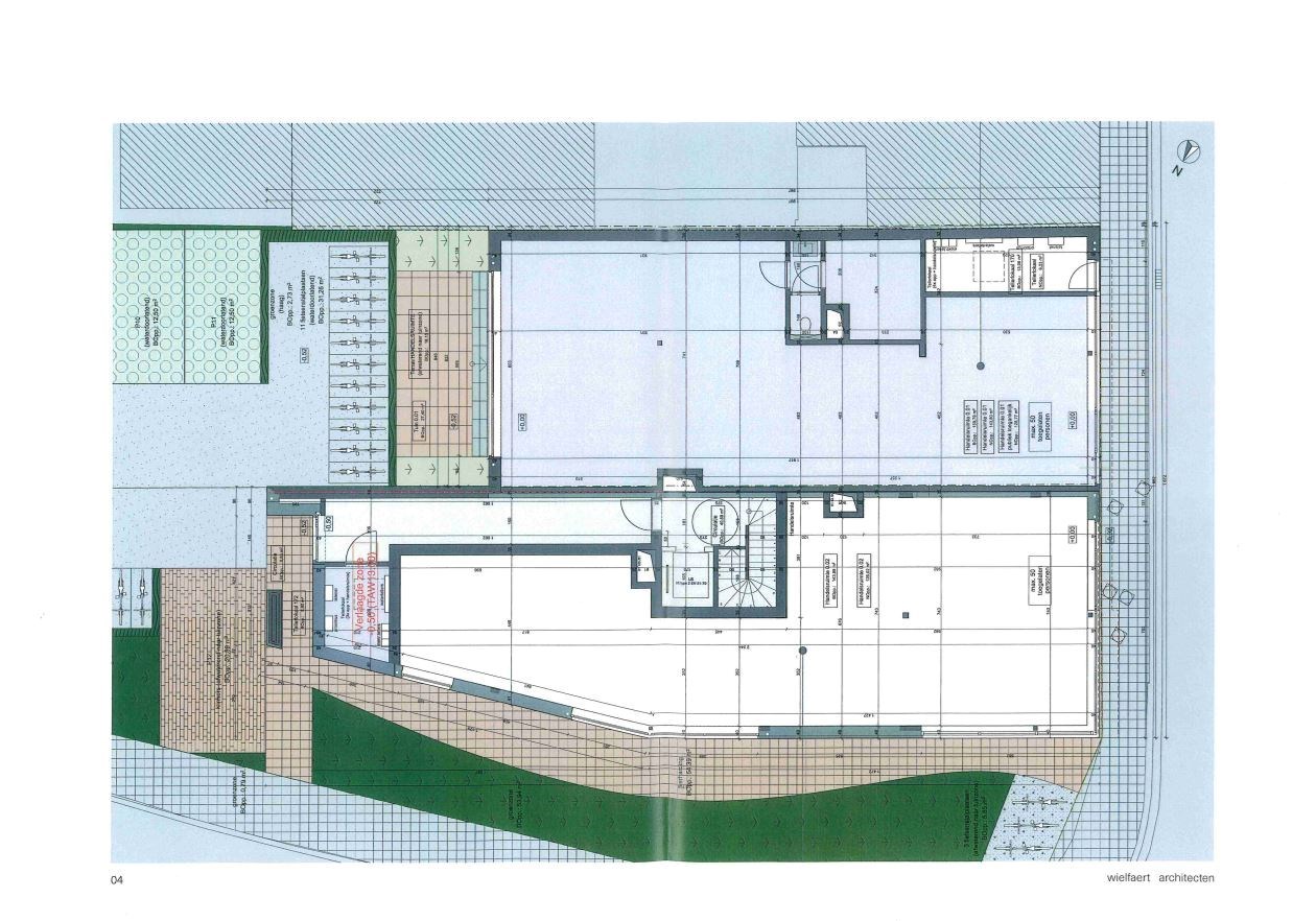
Gelijkvloerse handelsruimte van 159 m² met terras in het centrum van Waregem
€ 461 100
Op zoek naar de ideale locatie voor uw onderneming?
Ontdek deze veelzijdige, gelijkvloerse handelsruimte met ruim terras, perfect gelegen in het hart van Waregem. Dankzij de centrale ligging – vlak bij het station, het stadscentrum en te midden van een bruisende winkelstraat – geniet u hier van maximale visibiliteit en een constante stroom van voorbijgangers en potentiële klanten.
Ligging:
Deze handelsruimte bevindt zich in een drukbezochte winkelstraat, een toplocatie die garant staat voor een uitstekende zichtbaarheid en commerciële kansen.
Indeling & Afwerking:
De ruimte wordt casco aangeboden, wat u de unieke mogelijkheid geeft om het interieur volledig naar eigen smaak en noden in te richten. U vertrekt van een blanco canvas zonder beperkingen van bestaande structuren – ideaal voor wie een persoonlijke en doordachte invulling wil geven aan zijn of haar handelszaak.
Terras:
Een ruim terras van 27,40 m² biedt tal van mogelijkheden – van extra verkoopruimte tot een sfeervolle plek om klanten te ontvangen.
Extra troef:
Er is de mogelijkheid tot aankoop van een parkeerplaats of carport, wat het comfort voor zowel uzelf als uw klanten aanzienlijk verhoogt.
Algemeen
| Adres: | Stationsstraat 172/0.01 Waregem |
| Referentie: | Stationsstraat 172 bus 0.01 - Waregem 06/25 |
| Vraagprijs: | € 461.100/totaal |
| Type: | Commercieel kantoor |
| Beschikbaar vanaf: | Bij oplevering |
| Bebouwde opp.: | 159 m² |
| Op verdieping: | 0 |
| Verhuurbare vloeroppervlakte: | 159 m² |
Comfort
| Snelweg: | Ja - op 3000 m tot 4000 m |
| Treinstation: | Ja - op minder dan 500 m |
| Treinhalte: | Ja - op minder dan 500 m |
| Bushalte: | Ja - op minder dan 500 m |
| Winkel: | Ja - op minder dan 500 m |
| School: | Ja - op minder dan 500 m |
| Kinderopvang: | Ja - op minder dan 500 m |
| Bank: | Ja - op minder dan 500 m |
| (Stads)centrum: | Ja - op minder dan 500 m |
| Ontspanning: | Ja - op minder dan 500 m |
| Restaurant: | Ja - op minder dan 500 m |
| Mech. ventilatie : | Ja |
| Rookdetector: | Ja |
Wettelijke gegevens
| Stedenbouwkundige vergunning: | Ja |
| Voorkooprecht: | Neen |
| Verkavelingsvergunning van toepassing: | Ja |
| Stedenbouwkundige bestemming: | Woongebied |
| Dagvaarding en herstelvordering: | Geen rechterlijke herstelmaatregel of bestuurlijke maatregel opgelegd |
| Overstromingsgevoelig: | Geen overstromingsgevoelig gebied |
| Overstromingsgebied: | Geen afgebakende zones |
| Overstromingskans perceel (P-score): | A |
| Overstromingskans gebouw (G-score): | A |
| Erfgoed: | Geen beschermd erfgoed |