Nieuwbouw handelsruimte van 46 m² gelegen nabij verschillende invalswegen, winkels en openbaar vervoer te Desselgem. Dit kleinschalig project bestaat uit 4 appartementen en 1 handelsruimte.

Er is mogelijkheid tot kopen van garage (30.000 €) en/of staanplaats (7.000 €/per plaats) die zich achteraan het gebouw bevinden.
De handelsruimte is reeds afgewerkt met ventilatie, maatwerkkast, vloer, gyproc wanden schildersklaar en geberit toiletsysteem (excl toilet zelf). Er is mogelijkheid voor het plaatsen van een keukenblok.

Zeer gunstige EPB waarde.

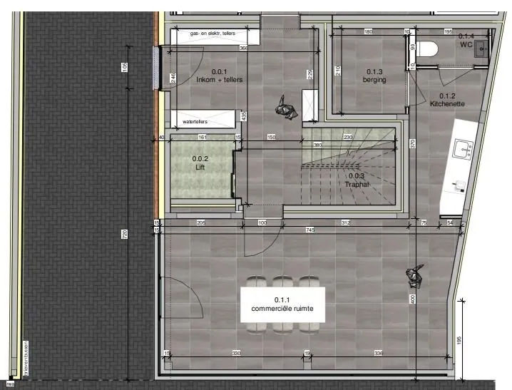
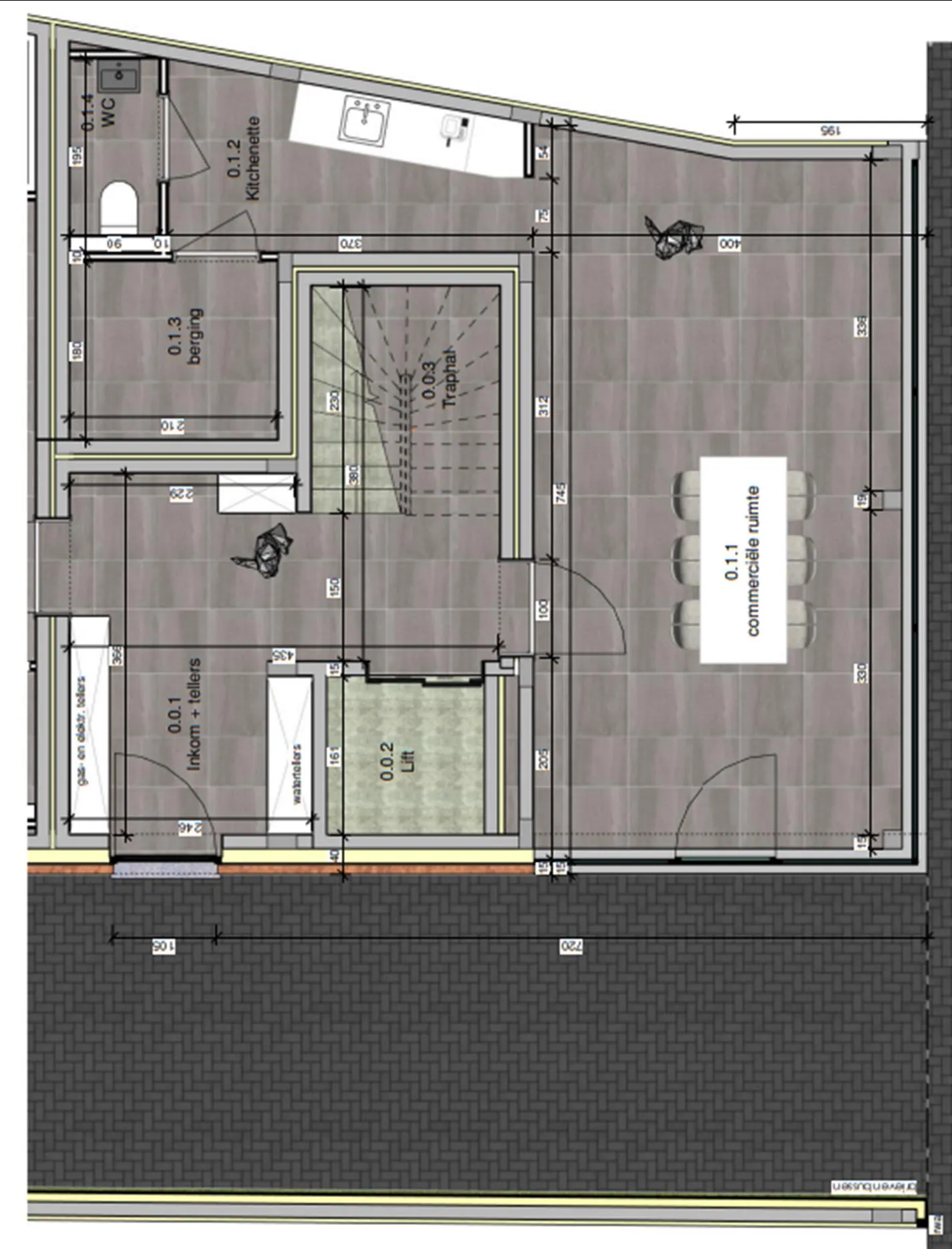
Indeling handelsruimte:
- Commerciële ruimte met grote raampartijen die zorgen voor een goede visibiliteit en lichtinval
- Berging
- Apart toilet
- afgewerkt met degelijke materialen
- Totale bruto-oppervlakte handelsruimte: +- 46 m²

Prijzen zijn exclusief registratie op grondaandeel en BTW op constructie.

Algemeen

Adres:Gentseweg 41
Desselgem
Referentie:Gentseweg 41 - Desselgem 01/25
Vraagprijs:€ 150.000
Type:Kantoor
Beschikbaar vanaf:Bij akte
Type constructie:Traditioneel
Bouwjaar:2023
Op verdieping:0
Verhuurbare vloeroppervlakte:46 m²

Comfort

Bushalte:Ja - op minder dan 500 m
Winkel:Ja - op minder dan 500 m
School:Ja - op 500 m tot 1000 m
Bank:Ja - op minder dan 500 m
Restaurant:Ja - op 500 m tot 1000 m
Beglazing:Dubbel
Lift:Ja

Wettelijke gegevens

Stedenbouwkundige vergunning:Ja
Voorkooprecht:Neen
Stedenbouwkundige bestemming:Woongebied
Overstromingsgevoelig:Geen overstromingsgevoelig gebied
Overstromingsgebied:Geen afgebakende zones
Erfgoed:Geen beschermd erfgoed
Desselgem 8792
Gentseweg 41

€ 150 000


U moet akkoord gaan met het privacybeleid van deze website
* Verplicht in te vullen
Desselgem 8792
Gentseweg 41

€ 150 000

Desselgem 8792
Gentseweg 41

€ 150 000