Deze centrumwoning met stijlvolle façade ligt op twee minuten wandelen van de markt van Wakken.
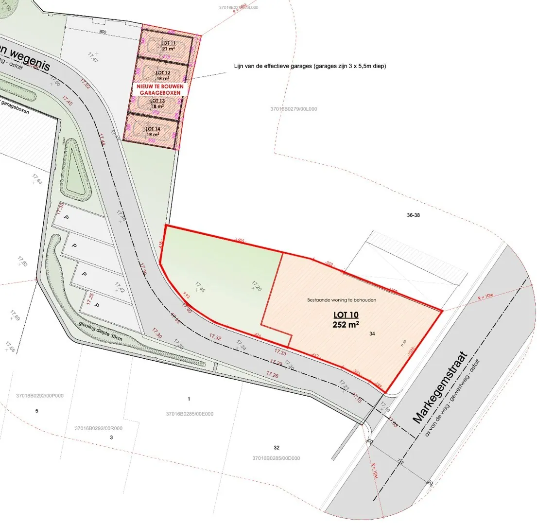
Achter de woning wordt een nieuwe verkaveling opgetrokken, nieuwe garages, wegenis en parkeerplaatsen worden aangelegd.

Groot pluspunt bij dit renovatieproject is de mogelijkheid om een nieuwe garage mee aan te kopen in de achterliggende verkaveling.

Het stadstuintje is nieuw omheind en achteraan voorzien van een poortje. Uitweg voor fietsen en tuingerief dus. De nieuw te bouwen garages bevinden zich om de hoek, net als een viertal openbare parkeerplaatsen.

De woning heeft een zeer groot volume en bewoonbare oppervlakte. Er is een vol eerste verdiep en een volwaardige en bruikbare zolderruimte.
De enorme kelder met gemetste gewelven biedt extra veel mogelijkheden.

Goeie verbinding naar zowel Tielt, Waregem als Zulte.

Perceelopp.
252 m²
Slaapkamers
4

Algemeen

Adres:Markegemstraat 34
Wakken
Referentie:Markegemstraat 34 - Wakken
Vraagprijs:€ 169.000
Type:Woning
Beschikbaar vanaf:Bij akte
Perceeloppervlakte:252 m²

Indeling

Slaapkamers:4

Wettelijke gegevens

Niet geïndexeerd K.I.:€ 386
Kadastrale benaming:4e afdeling Wakken
Kadastrale Nummers:1157LP0000
Kadastrale Oppervlakte:252 m²
EPC Certificaat Nr.:20250411-0003576036-RES-1
EPC Index:898,00 kWh/(m² jaar)
EnergyClass:F
Renovatieplicht:Ja
Stedenbouwkundige vergunning:Ja
Voorkooprecht:Neen
Verkavelingsvergunning van toepassing:Ja
Stedenbouwkundige bestemming:Woongebied
Dagvaarding en herstelvordering:Geen rechterlijke herstelmaatregel of bestuurlijke maatregel opgelegd
Overstromingsgevoelig:Geen overstromingsgevoelig gebied
Overstromingsgebied:Geen afgebakende zones
Overstromingskans perceel (P-score):A
Overstromingskans gebouw (G-score):A
Erfgoed:Geen beschermd erfgoed
Deze eigendom kan onderhevig zijn aan de renovatieverplichting die door de Vlaamse overheid wordt opgelegd voor residentiële gebouwen. Consulteer voor meer informatie de website van het Vlaams Energie- en Klimaatagentschap via https://www.vlaanderen.be/een-woning-kopen/renovatieverplichting-voor-residentiele-gebouwen
Wakken 8720
Markegemstraat 34

€ 169 000


U moet akkoord gaan met het privacybeleid van deze website
* Verplicht in te vullen
Wakken 8720
Markegemstraat 34

€ 169 000

Wakken 8720
Markegemstraat 34

€ 169 000